Loading
logo
  • Projects
    • AB_ph
    • AU_ph
    • Beet_ph [unbuilt]
    • CABIN_ph
    • CO_ph
    • H_arbor Refugee Housing
    • HA_ph
    • MK_ph
    • RESTORE_ph
    • Sol Coffee Mobile Espresso Bar
    • SW_ph
    • T_haus [Temporal.haus]
  • Hyperlocalization of Architecture
    • The book
      • Order
      • Living Index
      • [Spain Wraps]
      • [Japan Condenses]
      • [Australia Unfolds]
      • [Cascadia Harvests]
      • [Denmark Plays]
      • [Mexico Embeds]
      • [Germany Maintains]
  • Explorations
    • Melbourne Unfolds [Film]
    • CLT House [Cascadia Harvests Film]
    • Presentations
  • About
    • Awards + Interviews + Publications
    • The Design Process
    • Us
logo
  • Projects
    • AB_ph
    • AU_ph
    • Beet_ph [unbuilt]
    • CABIN_ph
    • CO_ph
    • H_arbor Refugee Housing
    • HA_ph
    • MK_ph
    • RESTORE_ph
    • Sol Coffee Mobile Espresso Bar
    • SW_ph
    • T_haus [Temporal.haus]
  • Hyperlocalization of Architecture
    • The book
      • Order
      • Living Index
      • [Spain Wraps]
      • [Japan Condenses]
      • [Australia Unfolds]
      • [Cascadia Harvests]
      • [Denmark Plays]
      • [Mexico Embeds]
      • [Germany Maintains]
  • Explorations
    • Melbourne Unfolds [Film]
    • CLT House [Cascadia Harvests Film]
    • Presentations
  • About
    • Awards + Interviews + Publications
    • The Design Process
    • Us
Date 2014-05-10
Author andrew
Categories [Australia Unfolds]

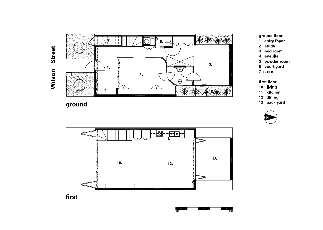
Perforated House / Kavellaris Urban Design / Melbourne

PROJECT

Perorated-House-GIF

“You need to be completely aware of where you are, the environment, the culture, the place, all of those things are important to architecture.”  – Billy KavellarisPerforated-House-GIF-Animation(Web)

Billy Kavellaris
Photo Peter Bennetts
Photo Peter Bennetts
Photo Peter Bennetts
Photo Peter Bennetts
Photo Peter Bennetts
Photo Peter Bennetts

Prev Post
Templestowe Reserve Sporting Pavilion / Phooey Architects / Melbourne
Next Post
Rooftop Penthouse / MHN Design Union / Sydney

Related

[Australia Unfolds][Cascadia Harvests][Denmark Plays][Germany Maintains][Japan Condenses][Mexico Embeds][Spain Wraps]
Living Index
[Australia Unfolds]
RMIT Design Hub / Sean Godsell / Melbourne
[Australia Unfolds]
Park Bench House / Sean Godsell / Anywhere
BOOK [ours] Hyperlocalization of Architecture An immersive global tour that merges the wisdom of place with the best contemporary worldwide design principles, all mindful of our aspirations but based on the logics of the surrounding cultural and natural environment. On sale now at your favorite book retailer.
©2025 Hyperlocal Workshop LLC
 

Loading Comments...
 

You must be logged in to post a comment.